Diseño Funcional y Bioclimático para Uso Diplomático

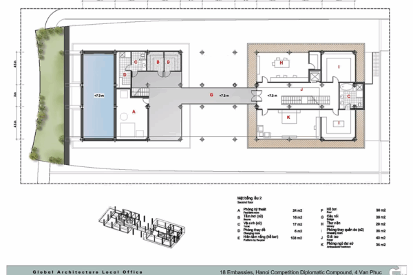
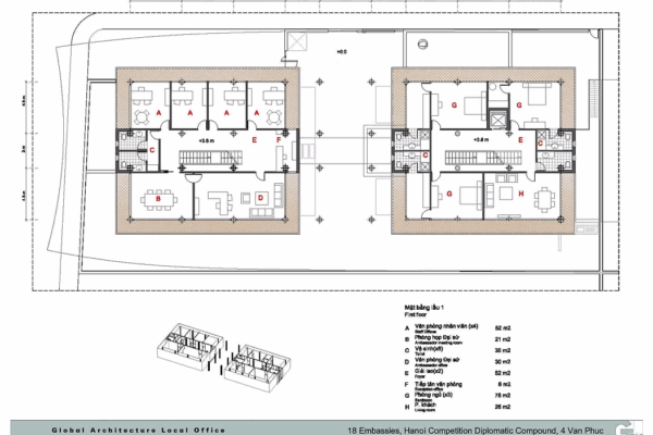
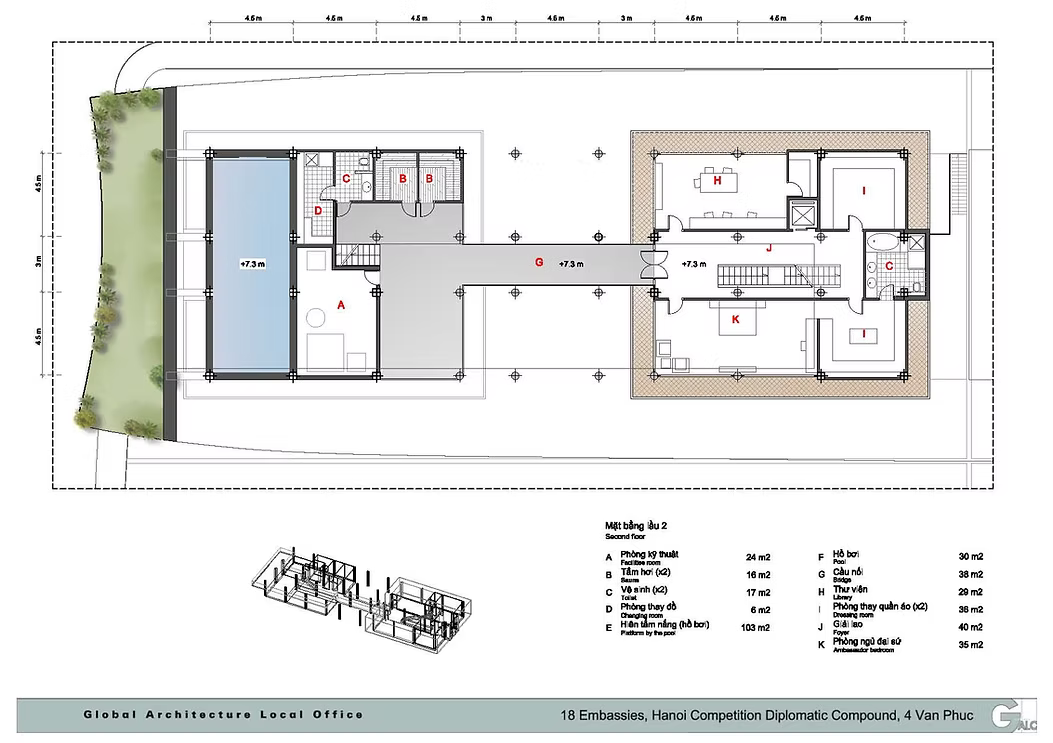
El proyecto se compone de dos volúmenes: uno para la embajada y otro para las residencias. Cada espacio ha sido optimizado para aprovechar al máximo la luz natural y la funcionalidad. Una segunda piel en madera y acero envuelve la fachada, regulando la ventilación y mejorando el confort térmico de forma pasiva.

Detalles del Proyecto

Ubicación

Hanoi, Vietnam

Año

2018

Concurso

18 Embajadas para el Complejo Diplomático

Colaboradores

Equipo GALO

Galería del Proyecto